Moderne Erdgeschoss-Wohnung in Köln-Mülheim
Informationen zur Immobilie:
Zimmeranzahl
2
Ort
51063 Köln
Objektart
Wohnung
Größe
ca. 63,82 m²
199.000 €
Beschreibung:
Mehr zum Angebot Moderne Erdgeschoss-Wohnung in Köln-Mülheim:
Die monatliche Nettokaltmiete beträgt 661,25 EUR zzgl. Betriebskostenvorauszahlung.
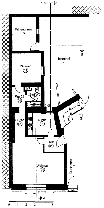
Die angebotene Eigentumswohnung befindet sich im Erdgeschoss eines denkmalgeschützten Mehrparteienhauses.
Die Wohnfläche von 63,82 m² verteilt sich wie folgt:
*Wohnzimmer (28,33 m²),
*Schlafzimmer (11,75... mehr erfahren
Die monatliche Nettokaltmiete beträgt 661,25 EUR zzgl. Betriebskostenvorauszahlung.
Die angebotene Eigentumswohnung befindet sich im Erdgeschoss eines denkmalgeschützten Mehrparteienhauses.
Die Wohnfläche von 63,82 m² verteilt sich wie folgt:
*Wohnzimmer (28,33 m²),
*Schlafzimmer (11,75... mehr erfahren
weitere 2 Zimmer Wohnungen