Preiswerte Mietkaufimmobilie abzugeben. Ohne Eigenkapital möglich.
Informationen zur Immobilie:
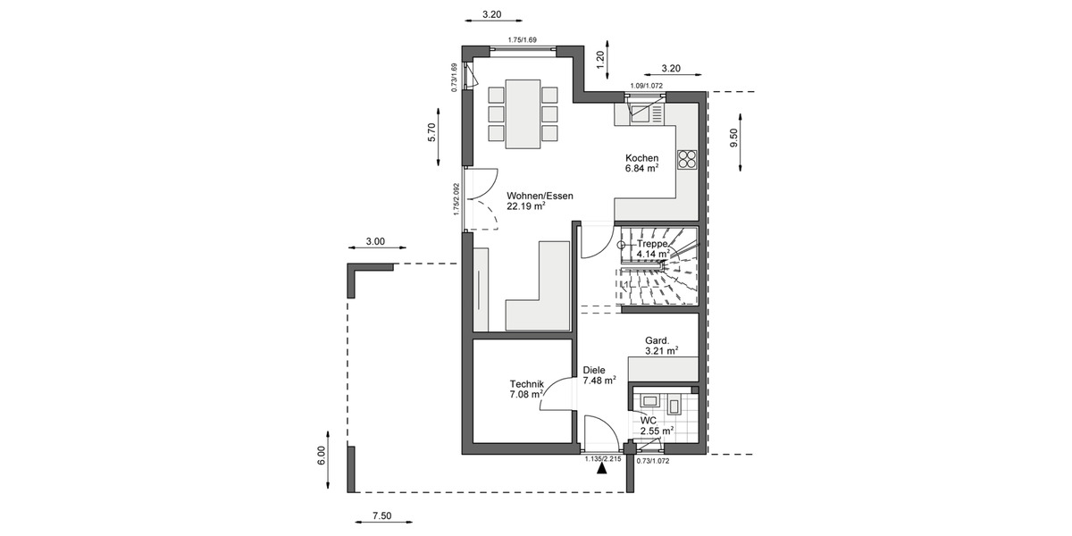
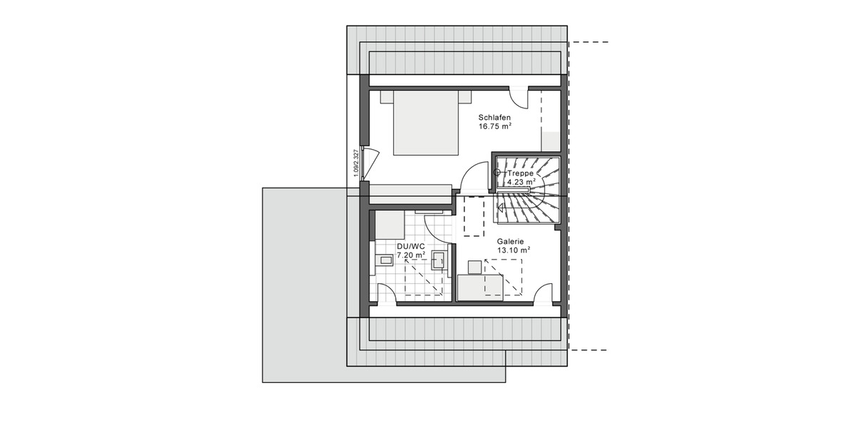
Zimmeranzahl
3
Grundstücksgröße
370,00 m²
Ort
40764 Langenfeld (Rheinland)
Objektart
Haus
Größe
ca. 100,00 m²
2.214 €
Beschreibung:
Mehr zum Angebot Preiswerte Mietkaufimmobilie abzugeben. Ohne Eigenkapital möglich.:
Attraktive Immobilie in Planung. Mietkauf möglich. Machen Sie den Check: Jetzt prüfen ob Sie Miet-Kauf berechtigt sind!
Raus aus der Alt-Immobilie - Rein in die eigenen vier Wände
- Ohne Eigenkapital
- Trotz... mehr erfahren
Attraktive Immobilie in Planung. Mietkauf möglich. Machen Sie den Check: Jetzt prüfen ob Sie Miet-Kauf berechtigt sind!
Raus aus der Alt-Immobilie - Rein in die eigenen vier Wände
- Ohne Eigenkapital
- Trotz... mehr erfahren
weitere Häuser